Ausgehend vom Motto „Auf dem Weg“ entstand eine Stegkonstruktion als prägendes Element, das den Raum gliedert, Verbindung schafft und zugleich Orte für Besinnung, Rückzug und Zusammenkommen bildet.Das Projekt wurde im Skript des Studiengangs Landschaftsarchitektur als ausgewähltes Projekt veröffentlicht.
»Die Arbeit überzeugt durch große Klarheit und eine wunderbar anregende grafische Bearbeitung bis zum Modell (… ) materiell fein aufeinander abgestimmt und ergibt ein inspirierendes Gesamtbild.«
Prof. Astrid Zimmermann
Ein Perspektivwechsel. Naturschutz als gesellschaftliches Projekt zu begreifen: als Beziehung zwischen Mensch und Landschaft, als gemeinsames Mitdenken, Mittragen und Mitgestalten. Denn geschützt wird am Ende nicht das, was verboten ist, sondern das, was verstanden wird. Du schützt was du liebst.
Eine landschaftsplanerische Vision, die Nutzungskonflikte sichtbar macht und in konkrete Entwicklungsziele übersetzt. Mit dem Ziel einer resilienten, gemeinschaftlich getragenen Landschaft bis 2030.
Für das gute Leben.
Untersucht, wie sich Raum nicht nur über Form, sondern über Atmosphäre, Materialität und Bewegung erfahrbar machen lässt. Ergebnis ist eine räumliche Abfolge aus Schwelle, Übergang und Verdichtung: ein Weg, der sich entfaltet und dabei Schutz, Kontrast und Orientierung erzeugt.
LET’S CHANGE THE WAY WE LIVE
Die Stadt von morgen verbindet Mensch und Natur auf neue, innovative Weise. Nicht müssen, sondern wollen. Keine Arbeit, die draußen ruft, sondern einfach seine alltäglichen Dinge erledigen. Draußen arbeiten. Draußen lernen. Draußen essen. Draußen sein.
Urbane grüne Begegnungsräume mit vielfältigen Sitz- & Aufenthaltsmöglichkeiten schaffen nicht nur Erholungsorte, sondern verändern unseren Alltag: raus aus den Häusern, rein in die Natur. Eine Gemeinschaft, die verbindet: Lokal. Nachhaltig. Gemeinschaftlich. Orte der Begegnung schaffen - für alle.
Das Konzept des ROSEMANN KIEZes sieht die Gestaltung eines durchgehenden, grünen und nachhaltigen Verbindungselements in Form von weitläufigen Biotopmulden vor, welche der Straße einen grünen Charakter verleihen. Dabei wird ein Fokus auf die Verbindung von öffentlichen Räumen mit Aufenthaltsqualität gelegt: Um eine ruhige Atmosphäre in der Straße zu kreieren, ist das ganze Planungsgebiet verkehrsberuhigt gestaltet. Eine KIEZ-Parkhaus lädt zum „Skill-Share“ ein, eine KIEZ-Nische birgt Raum für Gemeinschaft. Für die Wiederbelebung der Freiräume:
EIN GRÜNES WOHNZIMMER FÜR DIE ANWOHNER*INNEN.
„Der vorliegende Entwurf initiiert einen Impuls, der Anregung für ein neues Denken im Umgang mit unseren Straßen als öffentliche Lebensräume gibt.“
Prof. Dirk Manzke
Ein Pflanzkonzept, das Wassernutzung, Klimaresilienz und ökologische Funktion räumlich übersetzt.
Inhaltlich setzt sich das Konzept bewusst kritisch mit dem Motto auseinander: „Quellen der Zukunft“ werden nicht als unerschöpflicher Zufluss verstanden, sondern als Speicher, die Ressourcen aufnehmen, sorgsam bewirtschaften und in Trockenphasen oder Extremwetterereignissen verfügbar halten.
DIGITALE DARSTELLUNGSTECHNIKEN
Visualisierungsansätze in der Landschaftsarchitektur die zeigen, wie räumliche Situationen, Gestaltungsideen und Darstellungsformen wirkungsvoll entwickelt und kommuniziert werden.
Der Audiowalk „Die wachsende Stadt der Frauen“ thematisiert, dass öffentliche Räume nicht neutral sind, sondern unterschiedlich erlebt werden. Besonders nachts und aus weiblicher Perspektive.
Der Walk übersetzt diese Beobachtung in eine künstlerisch-konzeptionelle Audioarbeit, die historische Kämpfe mit heutigen Fragen an Stadtgestaltung verbindet.
Sensibilisierungstool im Umgang mit Landschaft und Naturhaushalt.
Schutz durch Verstehen, Wahrnehmen und Haltung. Für Entscheidungen, die nicht nur fachlich richtig sind, sondern auch getragen von Aufmerksamkeit und Verantwortung.
Ein praxisnahes Sensibilisierungskonzept zu Umwelt- und Schutzmaßnahmen in der Landschaftsarchitektur.
Eine Collage, die vor allem fragt, wem die Stadt gehört und wie sich Stadtentwicklung anfühlen kann, wenn sie sich zunehmend an Konsum und Verwertung orientiert, statt am Menschen.
Sie erinnert daran, dass das Herz einer Stadt nicht in Konsumtempeln schlägt, sondern dort, wo Alltag möglich ist.
Die wachsende Stadt steht vor mehr als einer quantitativen Wohnungsfrage. Nachverdichtung ist keine rein bauliche Aufgabe. Sie bestimmt, ob Stadt Nähe ermöglicht oder Distanz verstärkt, ob Wohnen Rückzug bleibt oder Teil eines gemeinsamen Alltags wird. Die absehbaren Veränderungen in Haushaltsstrukturen und Mobilität verlangen nach räumlichen Konzepten, die mehr leisten als Wohnen zu organisieren.
Demokratie, verstanden als alltägliche Praxis, entsteht dort, wo Begegnung möglich ist: in Übergängen, gemeinschaftlichen Räumen und Freiräumen. Nachverdichtung muss daher als Gerüst für zukünftiges Zusammenleben gedacht werden.
Vor diesem Hintergrund werden die Entwurfskriterien bewusst über bauliche Dichte hinaus gewählt.
Die Qualität der Stadt entscheidet sich nicht in der Wohnung, sondern in dem, was zwischen den Menschen entsteht.
das gerüst. ist kein Ziel, sondern ein Anfang. Es schafft Raum für Wandel, für Fürsorge, für gemeinsames Handeln. Nicht alles ist festgelegt, damit Verändern möglich bleibt, damit Menschen, nicht Pläne, die Zukunft weiterformen. Das Gerüst trägt: als Klima-System, als Nachbarschaft. Es spendet Schatten, födert Wachstum, hält uns zusammen.
Struktur für Leben. Architektur. Ökologie. Gemeinschaft.
gewohntes für die Zukunft gerüstet
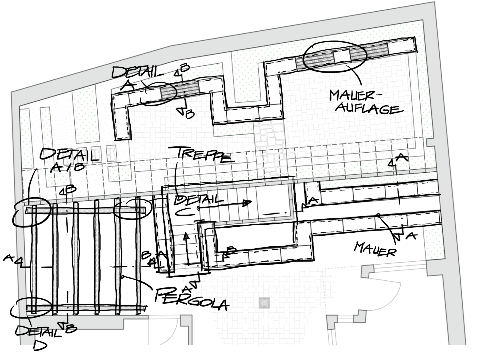
BAUKONSTRUKTIONS- UND AUSFÜHRUNGSPLANUNG
Ausschnitt meiner Baukonstruktions- und Ausführungsplanung (LP 5) mit Fokus auf präzise Detailentwicklung und Umsetzbarkeit.
Ausgehend von historischen Freiraumkonzepten und dem geometrischen Grundkanon barocker Anlagen wurde eine eigene Gestaltungslogik abgeleitet und in eine zeitgenössische Form übersetzt.
Das Ergebnis ist ein dreidimensionales Objekt „Portal des Bewusstseins“, das alte Wege neu verbindet und eine Haltung formuliert: Gestaltung entsteht aus natürlichen Prozessen, durch Wachstum, Schichtung, Schatten und Wandel.
HOCHWASSERSCHUTZ ZUM MITMACHEN
Entwickelt, um Bürger*innen niedrigschwellig, verständlich und ohne belehrenden Ton einzuladen, aktiv mitzuwirken
Für Räume, die Menschen verbinden. Für Landschaften, die funktionieren. Gestaltung, die bewegt, begeistert und Teilhabe möglich macht.